A49型主安全閥適用于工作溫度≤425℃的蒸汽管路,主安全閥與沖量安全閥應配套使用,以沖量安全閥開啟壓力信號使主安全閥開啟,繼而全量排放;當壓力降到規定值時,主安全閥自動關閉,是近代節能工程普遍使用的減溫減壓裝置中配套設備。廣泛使用于熱電聯產、輕紡、石化、制糖等行業,保證設備安全運行。
該安全閥適用于城建、化工、冶金、石油、制藥、食品、飲料、環保
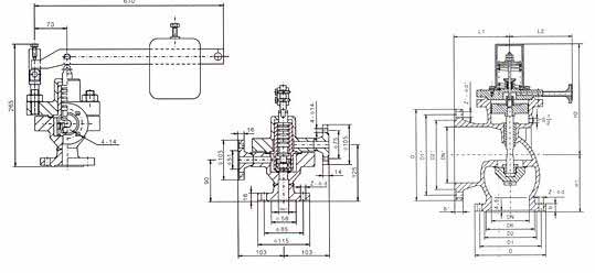
| 公稱通徑 DN(mm) |
尺寸(mm) | 重量(kg) | |||||||||||||||
|---|---|---|---|---|---|---|---|---|---|---|---|---|---|---|---|---|---|
| D | D1 | D2 | D0 | b | Z-Φd | D | D1 | D2 | D0 | b | Z-Φd | L1 | L2 | H1 | H2 | ||
| 150 | 300 | 250 | 218 | 204 | 30 | 8-25 | 360 | 310 | 278 | 200 | 34 | 12-25 | 220 | 240 | 230 | 560 | 135 |
| 200 | 375 | 320 | 285 | 260 | 38 | 12-30 | 485 | 430 | 390 | 300 | 40 | 16-30 | 270 | 330 | 295 | 615 | 261 |
| 250 | 445 | 385 | 345 | 313 | 42 | 12-34 | 550 | 490 | 448 | 350 | 44 | 16-34 | 300 | 370 | 350 | 646 | 354 |
主營產品:氣動調節閥 - 電動調節閥 - 自力式調節閥
版版權所有 © 上海大田閥門管道工程有限公司
地址:上海市浦東新區川宏路528號宏圖大樓5樓
